P‘s GAIENMAE 10階 外苑前駅徒歩2分!スタジアム通り沿いの店舗物件☆
外苑前徒歩2分、スタジアム通り沿いの貸店舗物件!
ガラス張りの外観ですので、視認性の良好☆天井も高く、開放感あり!!
人通りの多いエリアの為、集客見込めます◎
ぜひ、ご出店いかがでしょうか。
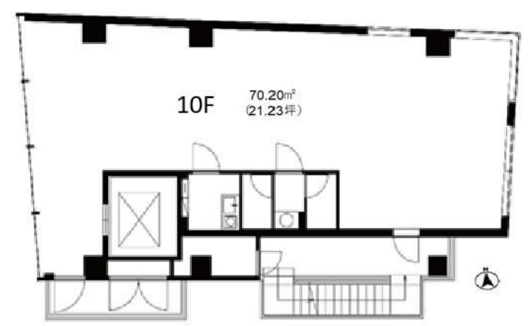
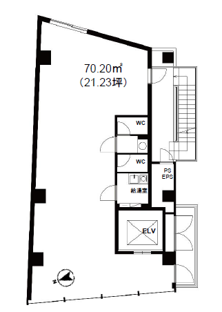
貸店舗物件詳細
DETAIL業種:物販、サービス店舖、事務所
設備:エレベーター、エアコン、給湯室、機械設備
天井高:3.52m
スケルトン渡し
最寄り駅
物件番号
O-0104082727-10
所在地
港区北青山2-7-27
建物面積
70.2m²
坪数
21.23坪
賃料
82.907万円(税込)
75.37万円(税別)
75.37万円(税別)
管理費
70,059円(税込)
63,690円(税別)
63,690円(税別)
礼金
-
敷金
452.2万円
/ 6ヶ月
償却
1ヶ月
階数
10階部分 / 10階建て
建物構造
S造
契約期間
定借3年
取引態様
媒介
引き渡し
6月上旬
現況
建築年月
2022年 11月
備考
賃料:<事務所>753,665円(税別)
<店舗>785,510円(税別)
保証金:<事務所>6ヶ月
<店舗>10ヶ月
損害保険加入必須
更新日
2026年04月13日
初期費用シミュレーター
INITIAL COSTこの物件の初期費用に関してはお問い合わせください
エリア情報
AREA82.907万円(税込) 70.2m² (21.23坪)
人通りが多め天井が高め視認性良好ガラス張り
更新日: 2026年04月13日
内見を予約する
この物件について相談03-5457-7825 お電話でのお問い合わせはこちらから(平日10〜18時)











