JU LIEN SUMIYOSHI 3階 住吉駅から徒歩3分!幅広い業態可能♪♪
住吉駅から徒歩3分です♪♪
飲食・美容系も大歓迎、幅広い業態が可能です!!
建築中の新築物件になります☆
ご新規出店お待ちしております♪
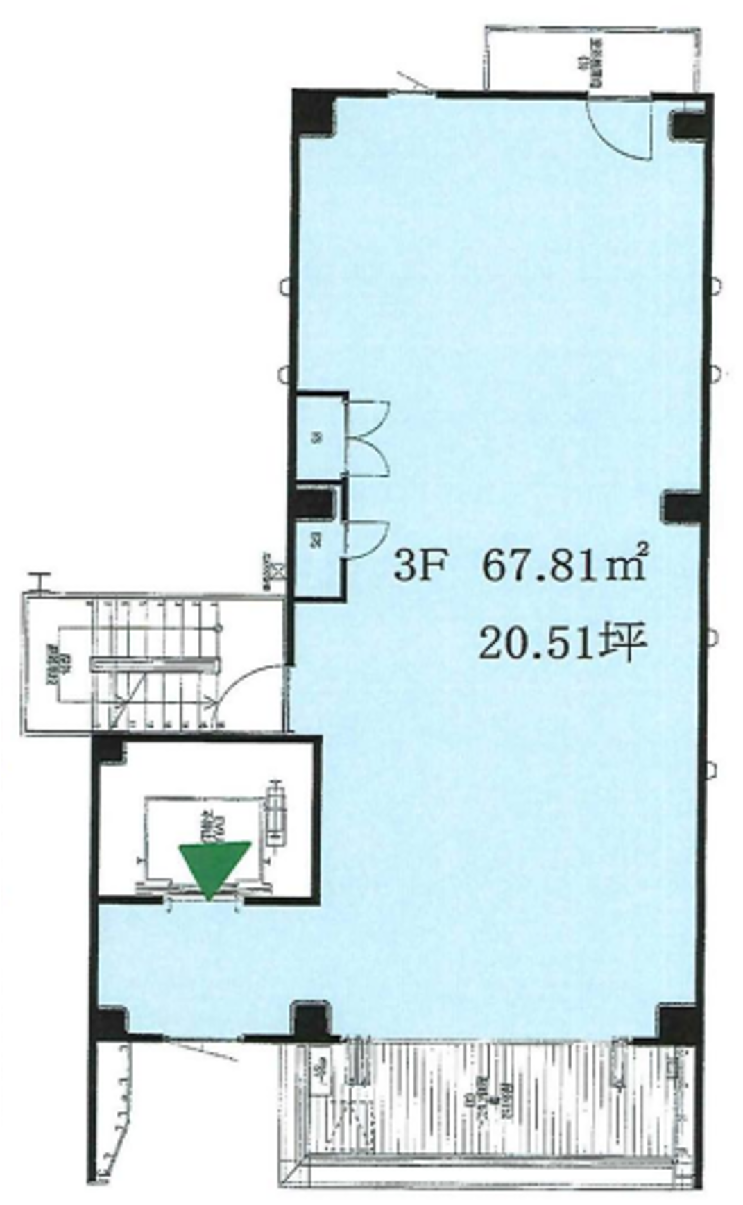
貸店舗物件詳細
DETAIL1フロア1テナント
スケルトン仕様
最寄り駅
物件番号
O-0136242145‐3
所在地
東京都江東区住吉2‐14‐5
建物面積
67.81m²
坪数
21坪
賃料
38.357万円(税込)
34.87万円(税別)
34.87万円(税別)
管理費
45,122円(税込)
41,020円(税別)
41,020円(税別)
礼金
38.357万円(税込)
/ 1ヶ月
34.87万円(税別)
34.87万円(税別)
敷金
348.67万円
/ 10ヶ月
償却
賃料の2カ月分
階数
3階部分 / 地上6階建て
建物構造
鉄骨造
契約期間
普通借3年
取引態様
媒介
引き渡し
2026年2月末竣工予定
現況
建築中
建築年月
2026年 2月
備考
更新料:新賃料の1ヶ月分
くらしあんしんサポート24Pro
24時間駆けつけサービス
年会費72,000円
更新日
2026年04月15日
初期費用シミュレーター
INITIAL COST賃料
38.357万円(税込)
共益費・管理費
45,122円(税込)
礼金
38.357万円(税込)
/ 1ヶ月
敷金・保証金
348.67万円
/ 10ヶ月
仲介手数料(目安)
38.357万円(税込)
その他(目安)
38.357万円(税込)
初期費用の目安
506.61万円
(税込)
*初期費用の目安は、初月賃料・共益費(管理費)・保証金・敷金・礼金・仲介手数料の総額です。
*その他、保証会社をご利用の場合など別途費用がかかる場合がございます。詳しくはお問い合わせください。
*その他、保証会社をご利用の場合など別途費用がかかる場合がございます。詳しくはお問い合わせください。
エリア情報
AREA38.357万円(税込) 67.81m² (21坪)
路面店スケルトン
更新日: 2026年04月15日
内見を予約する
この物件について相談03-5457-7825 お電話でのお問い合わせはこちらから(平日10〜18時)






