タチバナ日比谷ビル 1.2階 日比谷駅から徒歩3分!駅チカ物件!
日比谷駅から徒歩3分!
劇場やホテル、オフィス等が立ち並び多くの人が訪れるエリア!
ぜひご出店にいかがでしょうか☆
貸店舗物件詳細
DETAIL業種:飲食、サービス、物販など
引渡し:スケルトン
契約事務手数料:10,000円
再契約事務手数料:新賃料の0.25ヶ月分
短期違約金あり
最寄り駅
物件番号
O-0106571215-12
所在地
東京都千代田区有楽町1-2-15
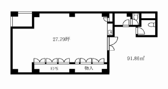
建物面積
112.62m²
坪数
34坪
賃料
206.063万円(税込)
187.33万円(税別)
187.33万円(税別)
管理費
-
礼金
-
敷金
1873.3万円
/ 10ヶ月
償却
無
階数
1.2階部分 / 10階建て
建物構造
鉄骨・鉄筋コンクリート造
契約期間
定期借家5年
取引態様
媒介
引き渡し
2026年3月
現況
建築年月
1991年 10月
備考
火災保険・保証会社加入必須
賃貸保証利用可(要確認)
更新日
2026年03月30日
初期費用シミュレーター
INITIAL COST賃料
206.063万円(税込)
共益費・管理費
-
礼金
-
敷金・保証金
1873.3万円
/ 10ヶ月
仲介手数料(目安)
206.063万円(税込)
その他(目安)
206.063万円(税込)
初期費用の目安
2491.489万円
(税込)
*初期費用の目安は、初月賃料・共益費(管理費)・保証金・敷金・礼金・仲介手数料の総額です。
*その他、保証会社をご利用の場合など別途費用がかかる場合がございます。詳しくはお問い合わせください。
*その他、保証会社をご利用の場合など別途費用がかかる場合がございます。詳しくはお問い合わせください。
エリア情報
AREA206.063万円(税込) 112.62m² (34坪)
人通りが多め
更新日: 2026年03月30日
内見を予約する
この物件について相談03-5457-7825 お電話でのお問い合わせはこちらから(平日10〜18時)
























