TIT秋葉原 5~7階 各線秋葉原駅より徒歩2分の好立地♪角立地で視認性良好な貸店舗物件☆
UDX秋葉原目の前、角地にある好立地物件!
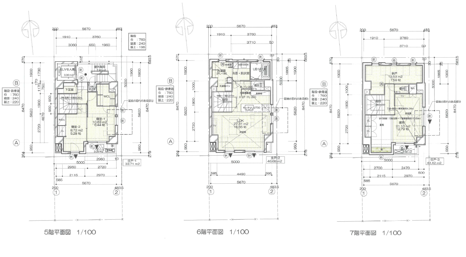
内階段がついているため5~7階一括貸しとなります。
元々貸主様の住居だったため、事務所・サロン等そのままご利用いただけます!
もちろん必要に応じて内装の変更も可能です。
貸店舗物件詳細
DETAILEV:有
引渡し:住居仕様
飲食不可
事務所・SOHO利用可
最寄り駅
物件番号
O-010644427-567
所在地
東京都千代田区外神田4-2-7
建物面積
124.81m²
坪数
38坪
賃料
66万円(税込)
60万円(税別)
60万円(税別)
管理費
-
礼金
66万円(税込)
/ 1ヶ月
60万円(税別)
60万円(税別)
敷金
480万円
/ 8ヶ月
償却
解約時賃料の1ヶ月分
階数
5,6,7階部分 / 7階建て
建物構造
RC造
契約期間
普通借家3年
取引態様
媒介
引き渡し
相談
現況
空室
建築年月
2019年 1月
備考
指定保証会社加入必須
火災保険加入必須(指定なし)
更新料:新賃料の1ヶ月分
更新日
2026年04月24日
初期費用シミュレーター
INITIAL COST賃料
66万円(税込)
共益費・管理費
-
礼金
66万円(税込)
/ 1ヶ月
敷金・保証金
480万円
/ 8ヶ月
仲介手数料(目安)
66万円(税込)
その他(目安)
66万円(税込)
初期費用の目安
744万円
(税込)
*初期費用の目安は、初月賃料・共益費(管理費)・保証金・敷金・礼金・仲介手数料の総額です。
*その他、保証会社をご利用の場合など別途費用がかかる場合がございます。詳しくはお問い合わせください。
*その他、保証会社をご利用の場合など別途費用がかかる場合がございます。詳しくはお問い合わせください。
エリア情報
AREA66万円(税込) 124.81m² (38坪)
人通りが多め視認性良好
更新日: 2026年04月24日
内見を予約する
この物件について相談03-5457-7825 お電話でのお問い合わせはこちらから(平日10〜18時)



