丹波屋ビル 4階 馬喰町徒歩2分!駅近好立地!
横山町問屋街に位置し、徒歩5分以内で3駅利用可能な好立地物件です!
是非お問い合わせください!
貸店舗物件詳細
DETAILエレベーター
エアコン
トイレ男女別
最寄り駅
物件番号
O-010530717-4
所在地
東京都中央区日本橋横山町7-17
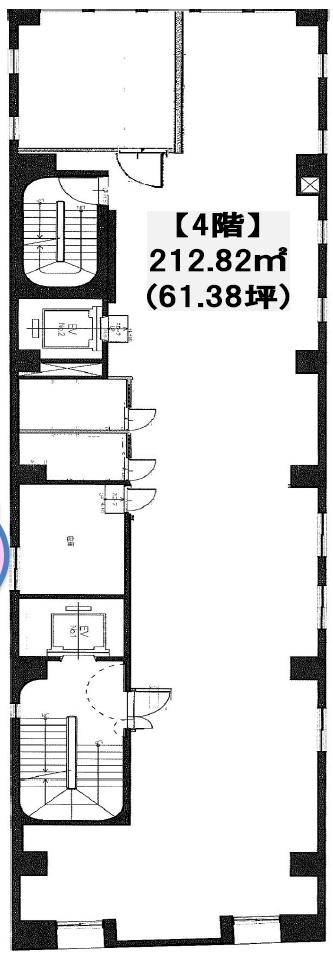
建物面積
212.82m²
坪数
61.38坪
賃料
67.518万円(税込)
61.38万円(税別)
61.38万円(税別)
管理費
135,036円(税込)
122,760円(税別)
122,760円(税別)
礼金
-
敷金
368.28万円
/ 6ヶ月
償却
解約時賃料の2ヶ月分
階数
4階部分 / 地下1階付7階建て
建物構造
RC造
契約期間
2年(更新可)
取引態様
媒介
引き渡し
相談
現況
建築年月
備考
要保証会社
更新料:新賃料の1ヵ月分
更新日
2025年10月17日
初期費用シミュレーター
INITIAL COSTこの物件の初期費用に関してはお問い合わせください
エリア情報
AREA67.518万円(税込) 212.82m² (61.38坪)
更新日: 2025年10月17日
内見を予約する

03-5457-7825 お電話でのお問い合わせはこちらから(平日10〜18時)