山田ビル 人形町駅徒歩5分♪1階路面の和食店居抜き物件!!
複数路線からアクセス可能!!
人形町らしい雰囲気のある立地です☆
臭いや煙の強い業態は不可となりますが、居抜きなので初期費用を抑えての出店が可能です♪
貸店舗物件詳細
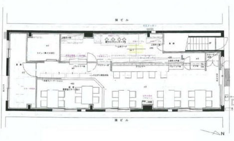
DETAILダクト;屋上
EV:無
グリスト:埋設
外国籍不可
営業時間24時まで
造作譲渡費用200万円(税別)
2年毎に賃料の1.5ヶ月分の中途礼金発生
最寄り駅
物件番号
O-0105222174-1
所在地
東京都中央区日本橋人形町2-17-4
建物面積
72.43m²
坪数
22坪
賃料
57.2万円(税込)
52万円(税別)
52万円(税別)
管理費
-
礼金
171.6万円(税込)
/ 3ヶ月
156万円(税別)
156万円(税別)
敷金
520万円
/ 10ヶ月
償却
3
階数
1階部分 / 3階建て
建物構造
鉄骨造
契約期間
定借6年
取引態様
媒介
引き渡し
即日
現況
閉店済み
建築年月
備考
指定火災保険加入必須
指定保証会社加入必須
中途礼金初回2027年9月30日発生
更新日
2025年10月08日
初期費用シミュレーター
INITIAL COST賃料
57.2万円(税込)
共益費・管理費
-
礼金
171.6万円(税込)
/ 3ヶ月
敷金・保証金
520万円
/ 10ヶ月
仲介手数料(目安)
57.2万円(税込)
その他(目安)
57.2万円(税込)
初期費用の目安
863.2万円
(税込)
*初期費用の目安は、初月賃料・共益費(管理費)・保証金・敷金・礼金・仲介手数料の総額です。
*その他、保証会社をご利用の場合など別途費用がかかる場合がございます。詳しくはお問い合わせください。
*その他、保証会社をご利用の場合など別途費用がかかる場合がございます。詳しくはお問い合わせください。
エリア情報
AREA57.2万円(税込) 72.43m² (22坪)
居抜き路面店
更新日: 2025年10月08日
内見を予約する

03-5457-7825 お電話でのお問い合わせはこちらから(平日10〜18時)