AUBE新川ビル 8階 八丁堀駅より徒歩2分、角地にあるサービス店舗におススメな貸店舗!!
京葉線・日比谷線八丁堀駅より徒歩2分、鍛冶屋通り沿いの貸店舗!!
事務所・サービス店舗におススメ、事務所仕様での引渡し予定!!
貸店舗物件詳細
DETAIL事務所仕様での引渡し予定で、事務所・サービス店舗におススメです!!
賃料相談可能/フリーレント相談可能
エレベーター:1基
個別空調あり
室外男女別トイレあり
機械警備なし
エントランス開放時間:7時~21時
24時間使用可能
夜間オートロック
共益費に水道料含む
最寄り駅
物件番号
O-01050621810-8
所在地
東京都中央区新川2-18-10
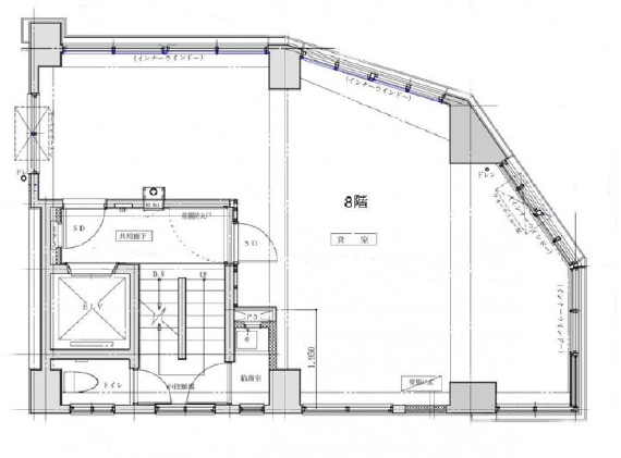
建物面積
68.83m²
坪数
21坪
賃料
32.065万円(税込)
29.15万円(税別)
29.15万円(税別)
管理費
59,545円(税込)
54,132円(税別)
54,132円(税別)
礼金
-
敷金
174.89万円
/ 6ヶ月
償却
なし
階数
8階部分 / 10階建て
建物構造
SRC造
契約期間
10年(定期借家)
取引態様
媒介
引き渡し
即日
現況
空
建築年月
1974年 9月
備考
火災保険要加入
保証会社要加入
夜間オートロック
ペット可(事前申請要)
更新日
2026年02月18日
初期費用シミュレーター
INITIAL COST賃料
32.065万円(税込)
共益費・管理費
59,545円(税込)
礼金
-
敷金・保証金
174.89万円
/ 6ヶ月
仲介手数料(目安)
32.065万円(税込)
その他(目安)
32.065万円(税込)
初期費用の目安
277.04万円
(税込)
*初期費用の目安は、初月賃料・共益費(管理費)・保証金・敷金・礼金・仲介手数料の総額です。
*その他、保証会社をご利用の場合など別途費用がかかる場合がございます。詳しくはお問い合わせください。
*その他、保証会社をご利用の場合など別途費用がかかる場合がございます。詳しくはお問い合わせください。
エリア情報
AREA32.065万円(税込) 68.83m² (21坪)
事務所仕様
更新日: 2026年02月18日
内見を予約する
この物件について相談03-5457-7825 お電話でのお問い合わせはこちらから(平日10〜18時)






