楠本第17ビル 2階 銀座一丁目駅徒歩1分好立地店舗物件!!
銀座一丁目の貸店舗物件!グレーのシンプルな外観が特徴的☆2007年に共用部分リニューアル済み!物販・サービス店舗にお勧めです★ぜひご出店いかがでしょうか。
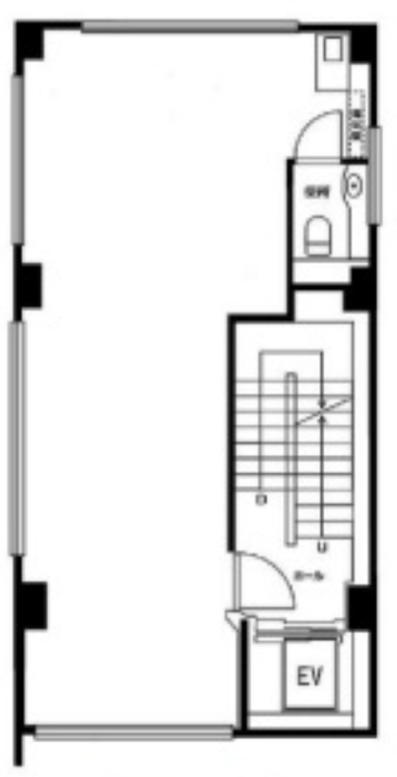
貸店舗物件詳細
DETAILエレベーター1基
タイルカーペット
個別空調
室内トイレ
機械警備
駐車場設備なし
最寄り駅
物件番号
O-01050511412-2
所在地
中央区銀座1-14-12
建物面積
47.77m²
坪数
14.45坪
賃料
39.743万円(税込)
36.13万円(税別)
36.13万円(税別)
管理費
63,580円(税込)
57,800円(税別)
57,800円(税別)
礼金
-
敷金
433.56万円
/ 12ヶ月
償却
10%(1年未満の解約20%/2年未満の解約15%)
階数
2階部分 / 5階建て
建物構造
SRC
契約期間
定借3年
取引態様
媒介
引き渡し
即日
現況
空
建築年月
1969年 12月
備考
保証会社要加入(月額固定費1ヵ月分)
火災保険要加入
更新日
2025年12月02日
初期費用シミュレーター
INITIAL COST賃料
39.743万円(税込)
共益費・管理費
63,580円(税込)
礼金
-
敷金・保証金
433.56万円
/ 12ヶ月
仲介手数料(目安)
39.743万円(税込)
その他(目安)
39.743万円(税込)
初期費用の目安
559.147万円
(税込)
*初期費用の目安は、初月賃料・共益費(管理費)・保証金・敷金・礼金・仲介手数料の総額です。
*その他、保証会社をご利用の場合など別途費用がかかる場合がございます。詳しくはお問い合わせください。
*その他、保証会社をご利用の場合など別途費用がかかる場合がございます。詳しくはお問い合わせください。
エリア情報
AREA39.743万円(税込) 47.77m² (14.45坪)
人通りが多めスケルトン視認性良好
更新日: 2025年12月02日
内見を予約する
この物件について相談03-5457-7825 お電話でのお問い合わせはこちらから(平日10〜18時)


















