ホウカイビル 1階1 表参道駅 徒歩7分、明治神宮前駅 徒歩10分、原宿駅 徒歩12分!3駅徒歩圏内の好立地店舗物件!
表参道駅 徒歩7分、明治神宮前駅 徒歩10分、原宿駅 徒歩12分!3駅徒歩圏内の好立地店舗物件!
希少な路面店!フリーレント1ヶ月!
貸店舗物件詳細
DETAIL引渡し状態:スケルトン
・
・物販可
・飲食不可(カフェ相談)
・空調機器はテナントC工事・消防設備B工事(地下1階は空調機器設置済み)
最寄り駅
物件番号
O-01011554214-11
所在地
東京都渋谷区神宮前5‐42‐14
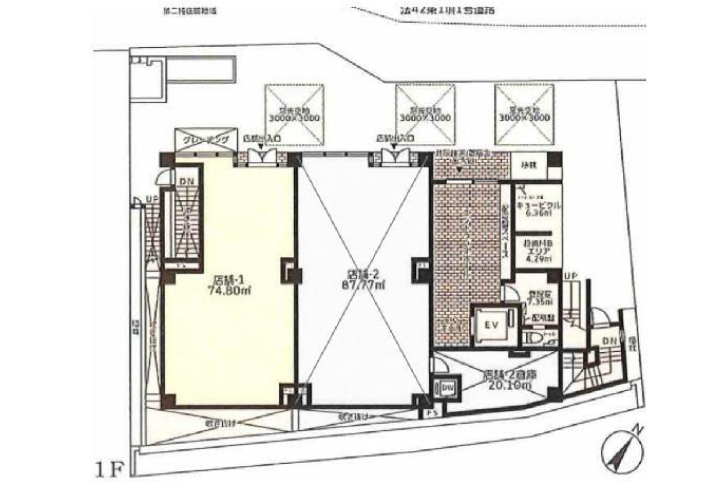
建物面積
74.8m²
坪数
23坪
賃料
99.572万円(税込)
90.52万円(税別)
90.52万円(税別)
管理費
-
礼金
99.572万円(税込)
/ 1ヶ月
90.52万円(税別)
90.52万円(税別)
敷金
452.6万円
/ 5ヶ月
償却
15%
階数
1階部分 / 5階建て
建物構造
SRC
契約期間
定借5年
取引態様
媒介
引き渡し
即
現況
空
建築年月
2025年 7月
備考
家財保険加入必須
保証会社利用必須
更新日
2025年12月05日
初期費用シミュレーター
INITIAL COSTこの物件の初期費用に関してはお問い合わせください
エリア情報
AREA99.572万円(税込) 74.8m² (23坪)
路面店デザイナーズガラス張り
更新日: 2025年12月05日
内見を予約する
この物件について相談03-5457-7825 お電話でのお問い合わせはこちらから(平日10〜18時)



